偏心球阀采用由板簧加载的活动阀座结构,阀座与球体不会出现卡死或分离等问题,密封可靠,使用寿命长,球芯带V型缺口金属阀座具有剪切作用,特别适用于含纤维、细小固体颗粒和浆液的介质。
全国服务热线: 4000-997-698 | 021-59974163
在线咨询偏心球阀采用由板簧加载的活动阀座结构,阀座与球体不会出现卡死或分离等问题,密封可靠,使用寿命长,球芯带V型缺口金属阀座具有剪切作用,特别适用于含纤维、细小固体颗粒和浆液的介质。
概括
偏心球阀采用由板簧加载的活动阀座结构,阀座与球体不会出现卡死或分离等问题,密封可靠,使用寿命长,球芯带V型缺口金属阀座具有剪切作用,特别适用于含纤维、细小固体颗粒和浆液的介质。在造纸工业中控制纸浆特别有利。启闭件采用V型槽口结构,彻底解决了介质易沉积在阀腔内的问题。全开时,阀门流量大,压力损失小。结构紧凑,通用性强,流量特性近似等百分比,可调范围大,可调比100:1。
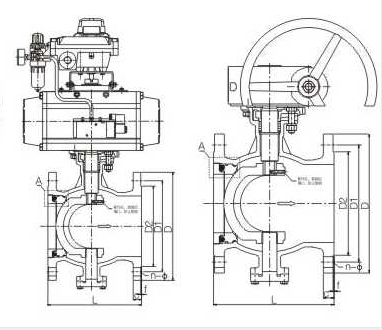
产品结构

外形与连接尺寸
PN16 | 150磅 | 10K | IS05211 | |||||||||||||||||
DN | 升 | D | D1 | D2 | C | F | n-Φb | D | D1 | D2 | C | F | n-Φb | D | D1 | D2 | C | F | n-Φb | |
100 | 229 | 220 | 180 | 158 | 20 | 2 | 8-Φ18 | 230 | 190.5 | 157.2 | 24.3 | 2 | 8-Φ18 | 210 | 175 | 151 | 18 | 2 | 8-Φ19 | F10,17×17 |
125 | 254 | 250 | 210 | 188 | 22 | 2 | 8-Φ18 | 255 | 215.9 | 185.7 | 24.3 | 2 | 8-Φ22 | 250 | 210 | 182 | 20 | 2 | 8-Φ23 | F10,22×22 |
150 | 267 | 285 | 240 | 212 | 22 | 2 | 8-Φ22 | 280 | 241.3 | 215.9 | 25.9 | 2 | 8-Φ22 | 280 | 240 | 212 | 22 | 2 | 8-Φ23 | F12,27×27 |
200 | 292 | 340 | 295 | 268 | 24 | 2 | 12-Φ22 | 345 | 298.5 | 269.9 | 29 | 2 | 8-Φ22 | 330 | 290 | 262 | 22 | 2 | 12-Φ23 | F12,27×27 |
250 | 330 | 405 | 355 | 320 | 26 | 2 | 12-Φ26 | 405 | 362 | 323.8 | 30.6 | 2 | 12-Φ26 | 400 | 355 | 324 | 24 | 2 | 12-Φ25 | F14.36 × 36 |
300 | 356 | 460 | 410 | 378 | 28 | 2 | 12-Φ26 | 485 | 431.8 | 381 | 32.2 | 2 | 12-Φ26 | 445 | 400 | 368 | 24 | 2 | 16-Φ25 | F14.36 × 36 |
350 | 450 | 520 | 470 | 428 | 30 | 2 | 16-Φ26 | 535 | 476.3 | 412.8 | 35.4 | 2 | 12-Φ30 | 490 | 445 | 413 | 26 | 2 | 16-Φ25 | F16,46×46 |
400 | 530 | 580 | 525 | 490 | 32 | 2 | 16-Φ33 | 595 | 539.8 | 469.9 | 37 | 2 | 16-Φ30 | 560 | 510 | 475 | 28 | 2 | 16-Φ27 | F16,46×46 |
450 | 580 | 640 | 585 | 550 | 40 | 2 | 20-Φ30 | 635 | 577.9 | 533.4 | 40.1 | 2 | 16-Φ33 | 620 | 565 | 530 | 30 | 2 | 20-Φ27 | F25,55×55 |
500 | 660 | 715 | 650 | 610 | 44 | 2 | 20-Φ33 | 700 | 635 | 584.2 | 43.3 | 2 | 20-Φ33 | 675 | 620 | 585 | 30 | 2 | 20-Φ27 | F30 |




沪公网安备31011402010645